TAKUTO GLOBAL
繁體
简体
TAKUTO GLOBAL
精選房源
出售房產
移民日本
日本租房
房產管理
購房須知
常見問題
聯絡我們
買賣 | 聯絡我們
租賃 | 聯絡我們
移民 | 聯絡我們
管理 | 聯絡我們
企業 | 聯絡我們
TOP
ROOM LIST
パークハウス代々木公園アーバンス
wechat
Weibo
LINE
facebook
情報提供日:2025.10.09
パークハウス代々木公園アーバンス
最近車站2分,近原宿商圈,隔壁就是代代木公園,宅都推薦東京買賣物件
✅最近車站走路2分,上班上學超便利
✅徒步圈商店林立,近原宿表參道逛街購物超方便
✅鄰近代代木公園,賞花散步接近大自然好場所
✅2LDK通風好,設有暖腳地暖系統,還可養毛小孩
✅大樓公設完善又貼心,有便利宅配箱還有寵物洗足區
✅大樓自動門鎖、螢幕式門鈴和防盜監視器等保障住戶安全
聯絡我們
總價(含稅)
136,900,000円
滿租投資報酬率
- %
年收入
- 万円
地址
東京都渋谷区富ヶ谷1丁目50-2
交通
東京メトロ千代田線「代々木公園」站 步行2分
小田急小田原線「代々木八幡」站 步行2分
-
建物結構
RC
建造年月
2005年10月
専有面積
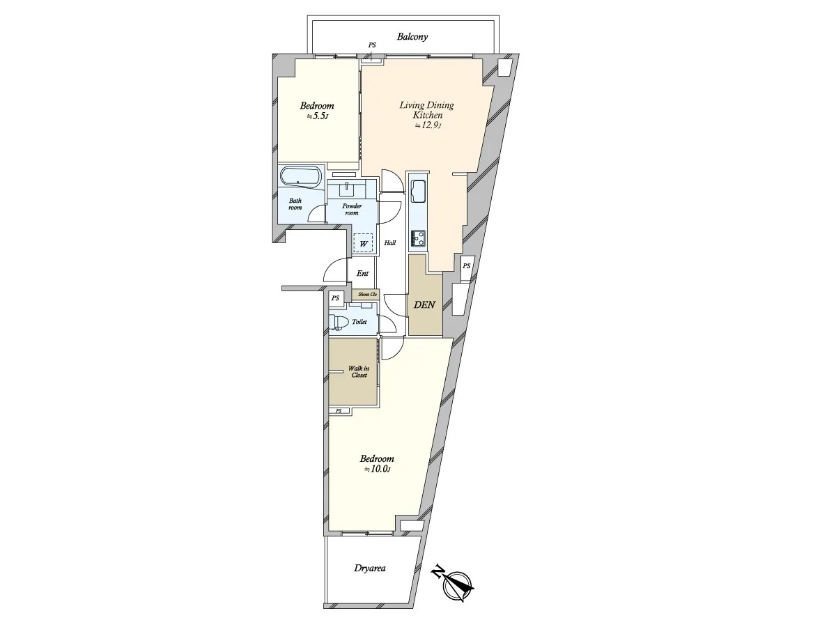
61.98 ㎡
管理費
26,500 円
維修基金
15,900 円
土地權利
所有權
所在樓層
2
陽台面積
- ㎡
物件格局
2LDK
總戶數
36 户
樓層數
8 階
交易方式
仲介
備註
-
(+886)02-2508-2820
接待時間10:00〜18:00
周六日、國定假日除外
聯絡我們
ID
takutozhao
ID
takutoyu
ID
zhaidujp